€ 575.000,- k.k.
**English text below**
Bent u op zoek naar een nieuw thuis in een bekoorlijke, groene wijk met overvloedige parkeermogelijkheden? Zoek niet verder! Deze elegante tussenwoning aan de Woestijnstraat 3 in Weidevenne, Purmerend biedt alles wat u zich kunt wensen en meer. De Woestijnstraat is een pittoreske zijstraat in de gewilde wijk Weidevenne, bekend om zijn groene omgeving en royale parkeergelegenheden. Bij deze woning kunt u zelfs direct voor de deur parkeren, wat niet alleen voor extra gemak zorgt, maar ook voor meer rust en privacy.
Alle informatie over deze woning in één handig overzicht? Download direct onze brochure voor de volledige omschrijving en overige informatie! Bekijk daarnaast ook de gepresenteerde woningvideo voor een goede indruk van de woning!
Deze tussenwoning is door de jaren heen met zorg onderhouden en biedt een afwerkingsniveau van de hoogste kwaliteit. Aan de voorzijde treft u een recent vernieuwde, luxueuze keuken, uitgerust met diverse hoogwaardige inbouwapparatuur, zoals een BORA inductiekookplaat met geïntegreerde afzuiging, een vaatwasser, een SIEMENS oven en een QUOOKER die zowel heet als bruisend water levert. De begane grond is afgewerkt met een chique tegelvloer, compleet met vloerverwarming. De woonkamer is extra ruim dankzij de uitbreiding aan de achterzijde, waar u een royale tv-hoek vindt bij de sfeervolle waterstofhaard. Vanuit de woonkamer heeft u toegang tot de zonnige en onderhoudsvriendelijke tuin, perfect voor ontspanning en buitenactiviteiten.
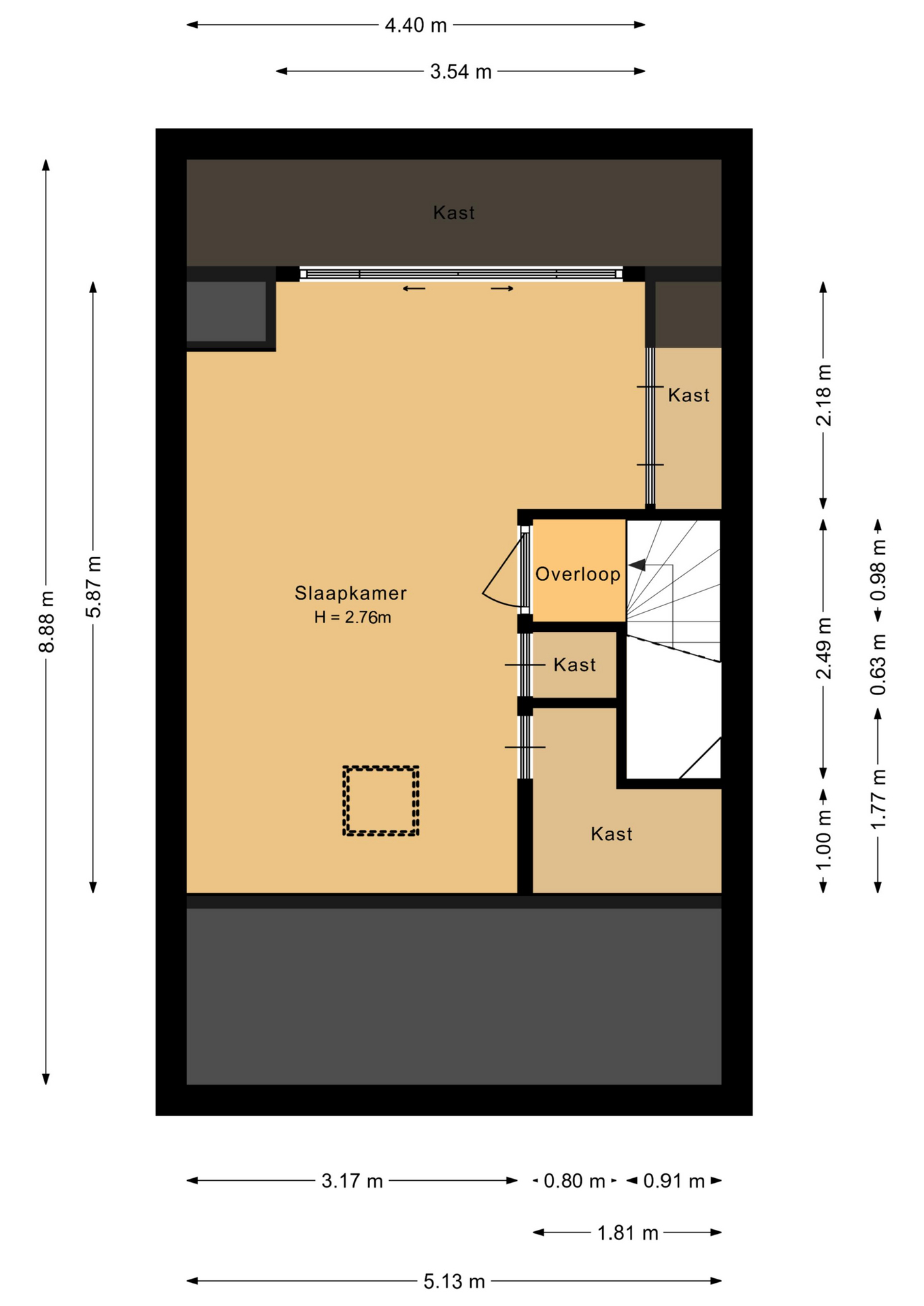
Op elke verdieping van de woning is airconditioning aanwezig, waardoor het binnenklimaat altijd aangenaam is, ongeacht het seizoen. De woning beschikt over vier slaapkamers, waarbij de zolderslaapkamer extra ruim is dankzij een dakkapel. Deze verdieping biedt tevens ruimte voor de aanwezige zonnepanelen, wat bijdraagt aan de energie-efficiëntie van de woning. Op zolder vindt u een aansluiting voor een wasmachine en droger, maar momenteel wordt een van de slaapkamers op de eerste verdieping als wasruimte gebruikt. De vergrote en luxueus uitgevoerde badkamer beschikt over een bubbelbad, dubbele regendouche, toilet en wastafel met meubel.
Weidevenne is een jonge en zeer kindvriendelijke wijk, ideaal voor gezinnen. Hier kunnen kinderen veilig buitenspelen en opgroeien in een harmonieuze en zorgeloze omgeving. Wist u dat de huidige bewoners van Woestijnstraat 3 hun tuin ooit omdoopten tot “de oase”? Het is een plek waar zij de hectiek van het dagelijks leven achter zich laten en genieten van rust en comfort. Met deze woning hoeft u dus niet te zoeken naar water in de woestijn, want hier vindt u alles wat u nodig heeft!
Deze tussenwoning aan de Woestijnstraat 3 biedt een unieke combinatie van luxe, comfort en een voortreffelijke ligging. Wacht niet langer en plan vandaag nog een bezichtiging. Deze woning is een ware oase in de geliefde wijk Weidevenne!
Onze makelaars staan graag paraat om je rond te leiden in deze fraaie woning! Voor meer informatie en een goede indruk van de woning en de omgeving kijk je onze bezichtigingsvideo. Voor alle ins&outs kun je de brochure downloaden, hier tref je ook de lijst van roerende zaken en de vragenlijst van de woning. Tot snel!
PS. Ons nieuwe aanbod als eerste zien? Volg ons dan op social media, dan zit je pas eersterangs in de markt! Ons werkgebied beslaat een groot gebied in Noord-Holland. Benieuwd wat jouw huidige woning waard is? Onze makelaars komen graag bij je langs voor een vrijblijvend verkoopgesprek met gratis waardebepaling!
**English**
Are you looking for a new residence in a charming, green neighborhood with ample parking opportunities? Look no further! This elegant terraced house at Woestijnstraat 3 in Weidevenne, Purmerend offers everything you could wish for and more. Woestijnstraat is a picturesque side street in the desirable Weidevenne district, known for its green surroundings and generous parking facilities. At this house, you can even park directly in front, which not only provides extra convenience but also more peace and privacy.
This home has been meticulously maintained over the years and offers the highest quality finish. At the front, you will find a recently renovated, luxurious kitchen equipped with various high-end built-in appliances, such as a BORA induction cooktop with integrated extraction, a dishwasher, a SIEMENS oven, and a QUOOKER providing both hot and sparkling water. The ground floor is finished with an exquisite tiled floor, complete with underfloor heating. The living room is extra spacious thanks to the extension at the rear, where you will find a generous TV area by the cozy hydrogen fireplace. From the living room, you have access to the sunny and low-maintenance garden, perfect for relaxation and outdoor activities.
Air conditioning is present on every floor of the house, ensuring a pleasant indoor climate regardless of the season. The house features four bedrooms, with the attic bedroom being particularly spacious thanks to a dormer. This floor also provides space for solar panels, contributing to the energy efficiency of the home. In the attic, you will find connections for a washing machine and dryer, but currently, one of the bedrooms on the first floor serves as a laundry room. The enlarged and luxuriously executed bathroom features a whirlpool bath, double rain shower, toilet, and washbasin with cabinet.
Weidevenne is a young and very child-friendly neighborhood, ideal for families. Here, children can play safely outside and grow up in a harmonious and carefree environment. Did you know that the current residents of Woestijnstraat 3 once named their garden “the oasis”? It is a place where they leave the hustle and bustle of everyday life behind and enjoy peace and comfort. With this house, you don’t have to search for water in the desert, because here you will find everything you need!
This terraced house at Woestijnstraat 3 offers a unique combination of luxury, comfort, and an excellent location. Don’t wait any longer and schedule a viewing today. This house is a true oasis in the beloved Weidevenne district!
- 135 m2
- 130 m2
- 4
Kenmerken Woestijnstraat 3
Overdracht
| Vraagprijs | € 575.000,- k.k. |
|---|---|
| Aanvaarding | In overleg |
Oppervlaktes en inhoud
| Perceel oppervlakte | 130 m2 |
|---|---|
| Woonoppervlakte | 135 m2 |
| Inhoud | 468 m3 |
Bouw
| Soort | Eengezinswoning |
|---|---|
| Bouwvorm | Bestaande bouw |
| Bouwjaar | 2004 |
| Dak type | Zadeldak |
| Isolatievormen | Volledig geïsoleerd |
| Energielabel | A++ |
Indeling
| Aantal verdiepingen | 3 |
|---|---|
| Aantal kamers | 5 |
| Aantal slaapkamers | 4 |
| Aantal badkamers | 1 |
Maandlasten
Ligging Woestijnstraat 3
Voorzieningen
- Openbare Basisschool Oeboentoe 162 m Zambezilaan 278 PURMEREND
- Amsterdamse Hogeschool voor de Kunsten 14 km Jodenbreestraat 3 AMSTERDAM
- ROC Horizon College 4 km Van Ijsendijkstraat 148a PURMEREND
- Amsterdamse Hogeschool voor de Kunsten 14 km Jodenbreestraat 3 AMSTERDAM
- Universiteit van Amsterdam 14 km Spui 21 AMSTERDAM
Centraal gelegen informatie over de buurt
Aantal inwoners
In de gemeente
79.928
Leeftijd
in percentages van totaal
Huishoudsamenstelling
in percentages van totaal
24%
20% NL
25%
20% NL
52%
20% NL