€ 550.000,- k.k.
Let op! Het betreft hier een bieden vanaf prijs.
Aan de lommerrijke Toendrastraat 5, verscholen in een rustig hofje in het geliefde Weidevenne, staat een woning die elegantie en comfort op geraffineerde wijze samenbrengt. Gebouwd in 1999 en sindsdien bewoond én gekoesterd door de eerste en enige bewoners, ademt deze woning karakter, zorg en verfijning. De imposante voorgevel verraadt al bij aankomst dat dit geen doorsnee huis betreft. Hier woont men met allure.
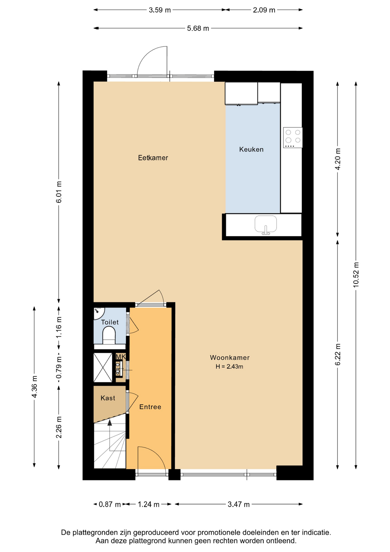
Met een woonoppervlakte van bijna 150 vierkante meter biedt deze woning ruimte in overvloed, zowel in beleving als in daadwerkelijke vierkante meters. De begane grond is uitgevoerd met een natuurstenen vloer en comfortabele vloerverwarming, terwijl de uitgebouwde achterzijde plaats biedt aan een riante woonkeuken – een plek waar culinaire passie en gezellig samenzijn moeiteloos samenvloeien. De keuken is voorzien van luxe inbouwapparatuur, subtiel verweven in het geheel.
Op de eerste verdieping bevinden zich twee slaapkamers, een separaat toilet en een stijlvolle, eigentijdse badkamer. De royale hoofdslaapkamer is ontstaan uit het samenvoegen van twee ruimtes en laat zich desgewenst weer opsplitsen – zo blijft de mogelijkheid tot vijf volwaardige slaapkamers behouden. De tweede etage, waar bij dit type woning doorgaans slechts een bergzolder schuilgaat, verrast hier met grandeur: dankzij een brede kunststof dakkapel – een doordachte toevoeging – zijn hier twee volwaardige slaapkamers gecreëerd. Ook hier bewijst de woning haar meerwaarde, waarin functionaliteit en schoonheid hand in hand gaan.
De zonnige achtertuin, vormt een serene buitenkamer, compleet met een overdekte veranda die met glazen panelen kan worden afgesloten. De houtkachel nodigt uit tot lange avonden vol warmte en sfeer, ongeacht het seizoen. Een geïntegreerde berging maakt deze buitenruimte niet alleen elegant, maar ook praktisch.
De ligging van de woning is onmiskenbaar ideaal. In het hart van Weidevenne, een wijk die zich onderscheidt door haar moderne opzet, groene lanen en uitstekende voorzieningen. De wijk biedt talloze basisscholen, een winkelcentrum op loopafstand, een eigen treinstation én directe verbindingen naar zowel het historische centrum van Purmerend als de rest van de Randstad. Niet te vergeten: dankzij de aanwezigheid van zonnepanelen is ook duurzaamheid hier geen bijzaak, maar een vanzelfsprekendheid.
Kortom: Toendrastraat 5 is een woning die verder reikt dan het praktische; het is een thuis met ziel, stijl en stille grandeur – een plek waar elegant wonen een vanzelfsprekende vorm heeft gekregen.
Onze makelaars staan graag paraat om je rond te leiden in deze fraaie woning! Voor meer informatie en een goede indruk van de woning en de omgeving kijk je onze bezichtigingsvideo. Voor alle ins & outs kun je de brochure downloaden, hier tref je ook de lijst van roerende zaken en de vragenlijst van de woning. Tot snel!
PS. Ons nieuwe aanbod als eerste zien? Volg ons dan op Social Media, dan zit je pas eersterangs in de markt! Ons werkgebied beslaat een groot gebied in Noord-Holland. Benieuwd wat jouw huidige woning waard is? Onze makelaars komen graag bij je langs voor een vrijblijvend verkoopgesprek met gratis waardebepaling!
- 146 m2
- 132 m2
- 4
Kenmerken Toendrastraat 5
Overdracht
| Vraagprijs | € 550.000,- k.k. |
|---|---|
| Aanvaarding | In overleg |
Oppervlaktes en inhoud
| Perceel oppervlakte | 132 m2 |
|---|---|
| Woonoppervlakte | 146 m2 |
| Inhoud | 473 m3 |
Bouw
| Soort | Eengezinswoning |
|---|---|
| Bouwvorm | Bestaande bouw |
| Bouwjaar | 1999 |
| Dak type | Lessenaardak |
| Isolatievormen | Volledig geïsoleerd |
| Energielabel | A+ |
Indeling
| Aantal verdiepingen | 3 |
|---|---|
| Aantal kamers | 5 |
| Aantal slaapkamers | 4 |
| Aantal badkamers | 1 |
Maandlasten
Ligging Toendrastraat 5
Voorzieningen
- Openbare Basisschool De Koempoelan 235 m Gangeslaan 59 PURMEREND
- Amsterdamse Hogeschool voor de Kunsten 14 km Jodenbreestraat 3 AMSTERDAM
- ROC Horizon College 3 km Van Ijsendijkstraat 148a PURMEREND
- Amsterdamse Hogeschool voor de Kunsten 14 km Jodenbreestraat 3 AMSTERDAM
- Universiteit van Amsterdam 14 km Spui 21 AMSTERDAM
Centraal gelegen informatie over de buurt
Aantal inwoners
In de gemeente
79.928
Leeftijd
in percentages van totaal
Huishoudsamenstelling
in percentages van totaal
21%
20% NL
27%
20% NL
52%
20% NL