€ 450.000,- k.k.
Met genoegen presenteren wij namens Tromp Garantiemakelaars deze keurig onderhouden tussenwoning in het hart van Middenbeemster – gelegen aan een rustige, kindvriendelijke straat waar de sfeer van het dorp nog dagelijks voelbaar is.
Deze woning vormt een fijne thuishaven voor wie op zoek is naar comfort, praktische indeling én duurzaamheid. De voortuin biedt parkeergelegenheid op eigen terrein: een zeldzaam voordeel in deze geliefde buurt. Aan de voorzijde van het dak zorgen negen zonnepanelen bovendien voor een aangename energiebesparing. Niet geheel verrassend is de woning dan ook voorzien van energielabel A – een uitstekende basis voor toekomstbestendig wonen.
Bij binnenkomst treffen we de entree met meterkast, een handige opberg-/voorraadkast, het toilet en de trapopgang naar de eerste verdieping. De open keuken bevindt zich aan de voorzijde van de woning en kijkt prettig uit over de straat. De woonkamer is tuingericht en kenmerkt zich door de lichte, open sfeer dankzij de dubbele openslaande deuren naar de achtertuin.
De tuin zelf is gesitueerd op het noordwesten, wat garant staat voor een heerlijke middag- en avondzon. Hier vinden we een praktische stenen berging, met daaraan een houten berging aangebouwd, en een achterom voor directe toegang tot het achterpad.
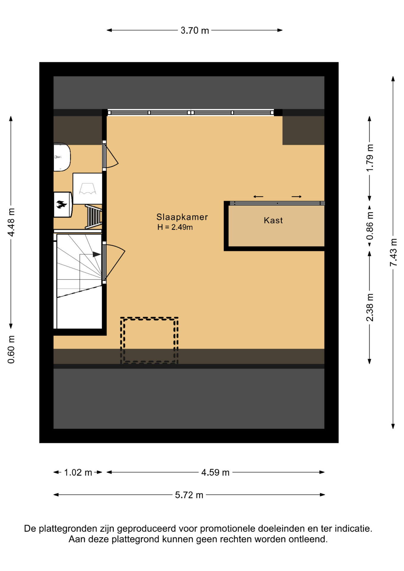
Op de eerste verdieping bevinden zich twee ruime slaapkamers (van origine drie, eenvoudig weer te herstellen), en een verzorgde badkamer voorzien van douche, toilet en wastafel. De overloop biedt toegang tot de vaste trap richting de tweede etage.
De tweede etage is verrassend ruim en ingedeeld met een volwaardige slaapkamer, voorzien van zowel een dakraam als een dakkapel, én een handige kast. Daarnaast is er een aparte ruimte ingericht als was-/stookruimte. Via een vlizotrap is ook de vliering bereikbaar: ideaal voor extra opslag.
Een woning met een solide basis, doordachte indeling, lage energielasten en fijne ligging binnen Middenbeemster. Alle dagelijkse voorzieningen bevinden zich op korte afstand, terwijl je hier toch de rust en ruimte van het dorpse leven ervaart.
Middenbeemster is niet zomaar een dorp – het is een plek met karakter, historie en een hechte gemeenschap. Gelegen in de Werelderfgoed-status dragende Beemsterpolder, ademt het dorp rust en ruimte, maar dan wel met alle belangrijke voorzieningen binnen handbereik. Denk aan basisscholen, sportverenigingen, een supermarkt, ambachtelijke bakker en slager: alles op loop- of fietsafstand.
En ondanks de landelijke ligging is de bereikbaarheid uitstekend. Binnen slechts 10 autominuten ben je in Purmerend, met een compleet aanbod aan winkels, horeca en openbaar vervoer. Ook steden als Alkmaar, Hoorn en Zaandam zijn goed bereikbaar. Via de A7 en N244 rijd je bovendien in circa 25 minuten naar Amsterdam.
Daarnaast is er een busverbinding vanuit Middenbeemster richting De Rijp, Alkmaar en Amsterdam (via Purmerend), wat een goede optie is voor wie liever met het openbaar vervoer reist.
Kortom: landelijk wonen met stedelijke bereikbaarheid – een combinatie die je zelden treft.
Onze makelaars staan graag paraat om je rond te leiden in deze fraaie woning! Voor meer informatie en een goede indruk van de woning en de omgeving kijk je onze bezichtigingsvideo. Voor alle ins & outs kun je de brochure downloaden, hier tref je ook de lijst van roerende zaken en de vragenlijst van de woning. Tot snel!
PS. Ons nieuwe aanbod als eerste zien? Volg ons dan op Social Media, dan zit je pas eersterangs in de markt! Ons werkgebied beslaat een groot gebied in Noord-Holland. Benieuwd wat jouw huidige woning waard is? Onze makelaars komen graag bij je langs voor een vrijblijvend verkoopgesprek met gratis waardebepaling!
- 123 m2
- 154 m2
- 3
Kenmerken Reigersbosch 9
Overdracht
| Vraagprijs | € 450.000,- k.k. |
|---|---|
| Aanvaarding | In overleg |
Oppervlaktes en inhoud
| Perceel oppervlakte | 154 m2 |
|---|---|
| Woonoppervlakte | 123 m2 |
| Inhoud | 425 m3 |
Bouw
| Soort | Eengezinswoning |
|---|---|
| Bouwvorm | Bestaande bouw |
| Bouwjaar | 1990 |
| Dak type | Zadeldak |
| Isolatievormen | Dakisolatie, Muurisolatie, Vloerisolatie, Dubbelglas |
| Energielabel | A |
Indeling
| Aantal verdiepingen | 4 |
|---|---|
| Aantal kamers | 4 |
| Aantal slaapkamers | 3 |
| Aantal badkamers | 1 |
Maandlasten
Ligging Reigersbosch 9
Voorzieningen
- De Blauwe Morgenster 679 m Nicolaas Cromhoutlaan 2 MIDDENBEEMSTER
- Amsterdamse Hogeschool voor de Kunsten 20 km Jodenbreestraat 3 AMSTERDAM
- Regio College 5 km Spinnekop 2 PURMEREND
- Amsterdamse Hogeschool voor de Kunsten 20 km Jodenbreestraat 3 AMSTERDAM
- Universiteit van Amsterdam 20 km Spui 21 AMSTERDAM
Centraal gelegen informatie over de buurt
Aantal inwoners
In de gemeente
9.205
Leeftijd
in percentages van totaal
Huishoudsamenstelling
in percentages van totaal
31%
20% NL
31%
20% NL
38%
20% NL