€ 525.000,- k.k.
Klaar om te wonen op een plek waar dorpse rust en stedelijke voorzieningen samenkomen? Noorderbreek 51 in Landsmeer wacht op jou! Hier woon je in een groene villawijk met een eigen waterlinie – niet voor niets heet dit gebied Waterland. Stap een paar passen uit je deur en je staat bij je eigen aanlegsteiger (geregistreerd), waar een sloep desgewenst onderdeel kan zijn van de deal. Hoe fijn is dat: na een drukke dag direct het water op?
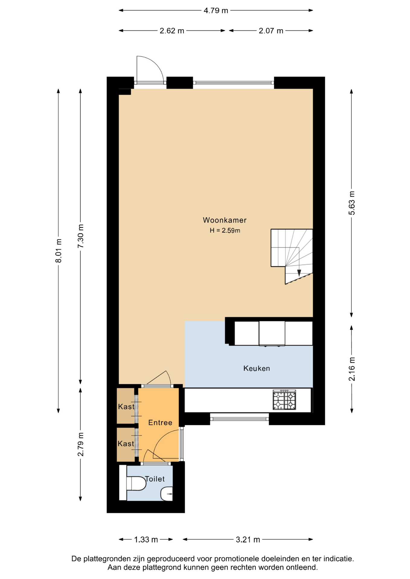
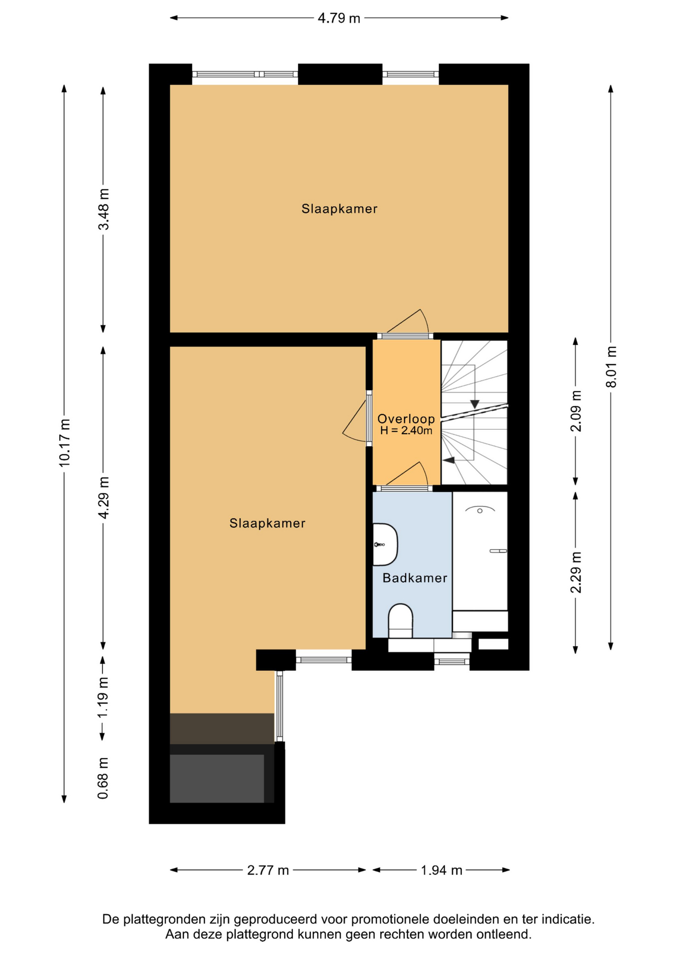
De woning zelf is speels vormgegeven en keurig onderhouden. Aan verhuizen zonder klussen heb je hier een goed voorbeeld, want alles is netjes afgewerkt en dat zie je overal terug. Aan de voorzijde tref je de moderne keuken in lichte kleurstelling, compleet met inbouwapparatuur, een Quooker en een royale kastenwand met volop opbergruimte. Aan de achterzijde ligt de woonkamer met trapopgang naar de eerste etage, waar je twee slaapkamers en een badkamer vindt. De badkamer is uitgerust met een ligbad (waarin je ook kunt douchen), een toilet, wastafel en handdoekradiator. Het langwerpige raam zorgt bovendien voor aangenaam daglicht.
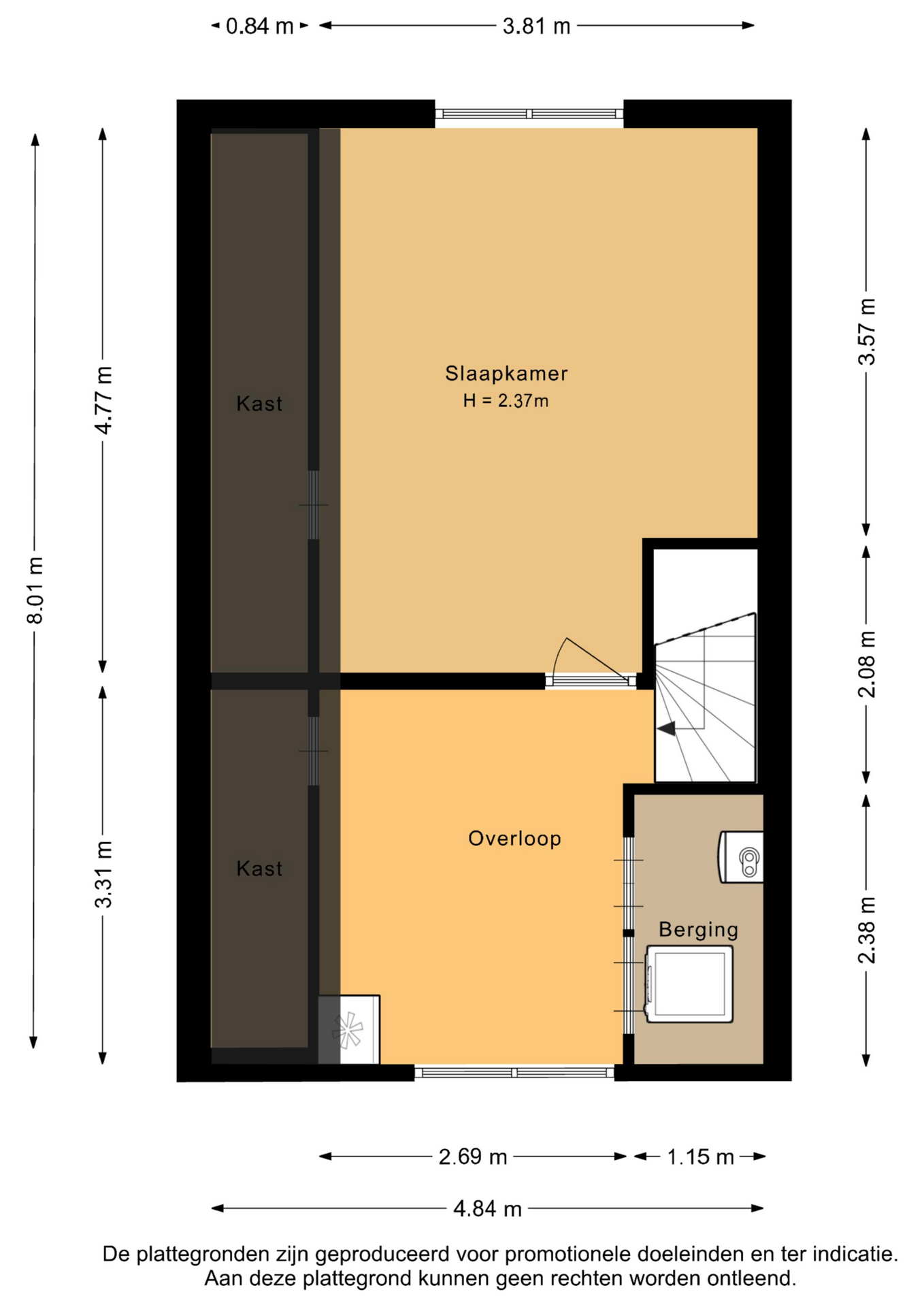
En dan de verrassing: de dakopbouw! Daarmee heb je een volwaardige tweede etage die nu dienstdoet als logeerkamer, maar eenvoudig kan worden omgetoverd tot derde slaapkamer, logeerkamer of kantoor. De ruime voorzolder maakt het extra multifunctioneel; ideaal als hobbyruimte of werkplek. Natuurlijk is glasvezel aanwezig, zodat je altijd profiteert van snel internet.
Buiten vind je een keurig aangelegde achtertuin, sfeervol ingedeeld met oog voor beplanting en gebruik van de ruimte. Helemaal achterin staat een vrijstaande stenen berging en via de poort heb je een handige achterom. Voor parkeren hoef je niet ver te zoeken: gewoon voor de deur, openbaar en altijd dichtbij.
Extra praktisch: de cv-ketel is pas 4 jaar oud en wordt onderhouden door Feenstra.
Qua bereikbaarheid zit je hier ook perfect. Met de auto rijd je in zo’n 15 minuten naar Amsterdam en de ring A10. Ook met het openbaar vervoer ben je goed aangesloten: bussen vanuit Landsmeer brengen je snel naar station Amsterdam Noord, waar je zo de Noord/Zuidlijn pakt richting het centrum of verder de stad in. Zo geniet je van de rust van Waterland, zonder de stad uit het oog te verliezen.
Hier geniet je van het beste van twee werelden: wonen in een rustige, groene en waterrijke omgeving, terwijl de stad om de hoek ligt. Of je nu droomt van varen vanaf je eigen steiger, werken vanuit huis of gewoon comfortabel wonen zonder zorgen – Noorderbreek 51 heeft het allemaal.
Onze makelaars leiden je graag rond en laten je zien waarom Noorderbreek 51 in Landsmeer dé plek is om volop van het waterrijke leven, de rust en het comfort te genieten. Voor meer informatie en een goede indruk van de woning en de omgeving kijk je onze bezichtigingsvideo. Voor alle ins & outs kun je de brochure downloaden, hier tref je ook de lijst van roerende zaken en de vragenlijst van de woning. Tot snel!
PS. Ons nieuwe aanbod als eerste zien? Volg ons dan op social media, dan zit je pas eersterangs in de markt! Ons werkgebied beslaat een groot gebied in Noord-Holland. Benieuwd wat jouw huidige woning waard is? Onze makelaars komen graag bij je langs voor een vrijblijvend verkoopgesprek met gratis waardebepaling!
- 112 m2
- 112 m2
- 3
Kenmerken Noorderbreek 51
Overdracht
| Vraagprijs | € 525.000,- k.k. |
|---|---|
| Aanvaarding | In overleg |
Oppervlaktes en inhoud
| Perceel oppervlakte | 112 m2 |
|---|---|
| Woonoppervlakte | 112 m2 |
| Inhoud | 375 m3 |
Bouw
| Soort | Eengezinswoning |
|---|---|
| Bouwvorm | Bestaande bouw |
| Bouwjaar | 1981 |
| Dak type | Samengesteld dak |
| Isolatievormen | Volledig geïsoleerd |
| Energielabel | A |
Indeling
| Aantal verdiepingen | 3 |
|---|---|
| Aantal kamers | 4 |
| Aantal slaapkamers | 3 |
| Aantal badkamers | 1 |
Maandlasten
Ligging Noorderbreek 51
Voorzieningen
- Basisschool Montessori Landsmeer 137 m Burgemeester Postweg 88 LANDSMEER
- Amsterdamse Hogeschool voor de Kunsten 6 km Jodenbreestraat 3 AMSTERDAM
- Stichting ROC TOP 3 km NDSM-straat 1 AMSTERDAM
- Amsterdamse Hogeschool voor de Kunsten 6 km Jodenbreestraat 3 AMSTERDAM
- Universiteit van Amsterdam 7 km Spui 21 AMSTERDAM
Centraal gelegen informatie over de buurt
Aantal inwoners
In de gemeente
11.275
Leeftijd
in percentages van totaal
Huishoudsamenstelling
in percentages van totaal
27%
20% NL
32%
20% NL
41%
20% NL