€ 585.000,- k.k.
In het geliefde, groene Landsmeer — waar rust, ruimte en de stad elkaar ontmoeten — ligt aan de Drakenstein 7 deze verrassend ruime en stijlvolle woning. Gelegen in een autovrij hofje met een parkachtige uitstraling en speelvoorzieningen voor de deur, geniet je hier van een oase van rust, terwijl het winkelplein en de uitstekende bus- en fietsverbindingen met Amsterdam op loopafstand liggen.
Door de slimme verplaatsing van de keuken naar de eerste verdieping is op de begane grond een royale woonkamer ontstaan met een bijna geheel glazen achterpui, die uitkijkt op de besloten, zonnige en weelderig groene tuin. De ruimte voelt licht en open aan en kan naar eigen smaak worden ingericht — van een gezellige leefruimte tot een moderne familiekamer. De woonkamer heeft bovendien een aparte koffiecorner, ideaal voor een ontspannen start van de dag.
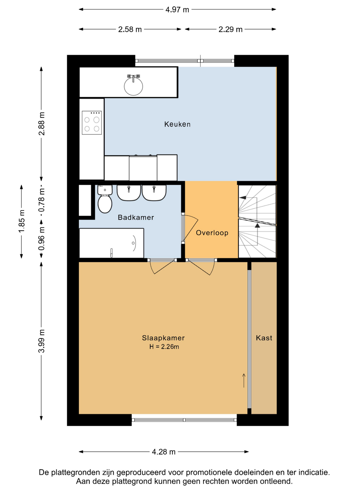
Op de eerste etage bevindt zich de keuken, samen met de hoofdslaapkamer en de badkamer, waardoor het comfort groot is en het dagelijkse leven zich moeiteloos op één niveau afspeelt. Voor wie liever de keuken weer beneden wil, kan dat eenvoudig — dan ontstaat er op deze verdieping ruimte voor een extra slaapkamer.
De tweede etage, vergroot door een royale dakopbouw, biedt talloze mogelijkheden: van twee extra slaapkamers tot een combinatie van een slaap- en werkkamer of zelfs een bijna zelfstandig appartement met zitgedeelte en badkamer.
De woning beschikt over zes zonnepanelen in eigendom, wat bijdraagt aan een duurzaam en energiezuinig wooncomfort. Het energielabel C biedt ruimte voor verdere verduurzaming, maar aan de locatie hoeft niets meer verbeterd te worden: een groene woonomgeving, geen auto’s voor de deur, volop parkeergelegenheid in de wijk en een ruime garage op de hoek van het perceel.
Wonen aan de Drakenstein 7 betekent wonen in één van de meest gewilde dorpen rondom Amsterdam. Landsmeer is geliefd om zijn dorpse karakter, omringd door natuurgebieden als Het Twiske en Ilperveld, terwijl de bruisende stad op nog geen kwartier afstand ligt. Hier vind je het beste van twee werelden: rust en natuur, met de reuring van Amsterdam binnen handbereik.
Drakenstein 7 biedt ruimte, comfort, groen en mogelijkheden — een huis waarin je niet alleen woont, maar echt thuiskomt.
Onze makelaars staan graag paraat om je rond te leiden in deze fraaie woning! Bekijk ook onze bezichtigingsvideo voor meer informatie en een goede indruk van de woning en de woonomgeving. Voor alle ins & outs kun je de brochure downloaden. Tot snel!
PS. Ons nieuwe aanbod als eerste zien? Volg ons dan op Social Media, dan zit je pas eersterangs in de markt! Ons werkgebied beslaat een groot gebied in Noord-Holland. Benieuwd wat jouw huidige woning waard is? Onze makelaars komen graag bij je langs voor een vrijblijvend verkoopgesprek met gratis waardebepaling!
- 127 m2
- 148 m2
- 2
Kenmerken Drakenstein 7
Overdracht
| Vraagprijs | € 585.000,- k.k. | 
|---|---|
| Aanvaarding | In overleg | 
Oppervlaktes en inhoud
| Perceel oppervlakte | 148 m2 | 
|---|---|
| Woonoppervlakte | 127 m2 | 
| Inhoud | 419 m3 | 
Bouw
| Soort | Eengezinswoning | 
|---|---|
| Bouwvorm | Bestaande bouw | 
| Bouwjaar | 1970 | 
| Dak type | Samengesteld dak | 
| Isolatievormen | Dakisolatie, Muurisolatie, Dubbelglas | 
| Energielabel | C | 
Indeling
| Aantal verdiepingen | 3 | 
|---|---|
| Aantal kamers | 4 | 
| Aantal slaapkamers | 2 | 
| Aantal badkamers | 1 | 
Maandlasten
Ligging Drakenstein 7
Voorzieningen
- Openbare Basisschool De Stap 114 m Dr. M.L. Kingstraat 2 LANDSMEER
- Amsterdamse Hogeschool voor de Kunsten 7 km Jodenbreestraat 3 AMSTERDAM
- ROC van Amsterdam 3 km Gare du Nord 13 AMSTERDAM
- Amsterdamse Hogeschool voor de Kunsten 7 km Jodenbreestraat 3 AMSTERDAM
- Universiteit van Amsterdam 7 km Spui 21 AMSTERDAM
Centraal gelegen informatie over de buurt
Aantal inwoners
In de gemeente
11.275
Leeftijd
in percentages van totaal
Huishoudsamenstelling
in percentages van totaal
25%
20% NL
32%
20% NL
43%
20% NL
 
                             
                             
                             
                             
                             
                             
                             
                             
                             
                             
                             
                             
                             
                             
                             
                             
                             
                             
                             
                             
                             
                             
                             
                             
                             
                             
                             
                             
                             
                             
                             
                             
                             
                             
                             
                             
                             
                             
                             
                             
                             
                             
                             
                             
                             
                             
                             
                             
                             
                             
                             
                             
                             
                             
                             
                             
                             
                             
                             
                             
                             
                             
                             
                             
                             
                             
                             
                             
                                 
                                 
                                 
                                 
                                 
                                 
                                 
                                 
                                 
                                 
                                 
                                 
                                 
                                 
                                 
                                 
                                 
                                 
                                 
                                 
                                 
                                 
                                 
                                 
                                 
                                 
                                 
                                 
                                 
                                 
                                 
                                 
                                 
                                 
                                 
                                 
                                 
                                 
                                 
                                 
                                 
                                 
                                 
                                 
                                 
                                 
                                 
                                 
                                 
                                 
                                 
                                 
                                 
                                 
                                 
                                 
                                 
                                 
                                 
                                 
                                 
                                 
                                 
                                 
                                 
                                 
                                 
                                 
                                 
                                 
                                 
                                 
                                 
                                 
                                     
                                     
                                     
                                     
                                     
                                     
                                                             
                             
                             
                             
                             
             
             
             
             
            