€ 450.000,- k.k.
Er zijn van die woningen waar je geduld voor moet hebben, en vandaag is zo’n moment waarop dat geduld wordt beloond. Aan het oude lint van Avenhorn, aan het vertrouwde West, mogen wij namens de eerste bewoners een woning aanbieden waar 53 jaar lang met liefde is gewoond. Een twee-onder-een-kapwoning op een plek waar het dorp ooit begon, waar de tijd z’n werk heeft gedaan, maar het karakter is gebleven. Een zeldzame kans om een thuis te maken op een plek waar generaties zijn grootgebracht en waar de volgende klaar staat om zijn eigen verhaal te schrijven.
Als makelaars met sterke wortels in deze regio mogen wij met regelmaat woningen verkopen in Avenhorn en het naastgelegen De Goorn. Maar eerlijk is eerlijk: een woning als deze, op deze plek, met dit verhaal? Daar wacht je géén jaar, maar decennia op. Deze woning, type twee-onder-een-kap, is destijds samen met de buurwoning gebouwd. Die andere helft hebben we al eens succesvol mogen verkopen. Nu is het jouw kans om deze helft van de woning eigen te maken. En geloof ons: als je hier 53 jaar met plezier woont, dan zit het met het woongenot wel goed.
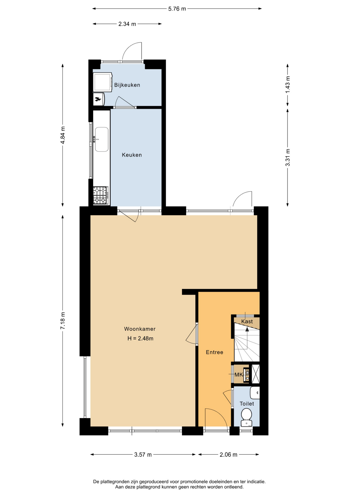
De woning heeft de jaren goed doorstaan. De indeling? Klassiek en vertrouwd, en dat bedoelen we positief. Want als iets werkt, waarom zou je het veranderen? Aan de achterzijde is de woning uitgebouwd met wat we hier in Avenhorn met een knipoog het “Hossie” noemen, elders wellicht beter bekend als het klompenhokje. Hier zijn de keuken en wasruimte ondergebracht, grenzend aan de woonkamer. Die woonkamer vormt samen met de eethoek één open geheel, met veel glas en een prettige lichtinval. Ideaal voor de dagelijkse momenten én de feestelijke.
Boven treffen we op de eerste verdieping drie ruime slaapkamers en een goed bemeten badkamer. De zolderverdieping is verrassend ruim: een voorzolder met dakraam en de cv-opstelling, én een volwaardige vierde slaapkamer met twee grote ramen én een eigen wastafel. Bij de buren is destijds een dakterras aangelegd, wellicht inspiratie voor jou?
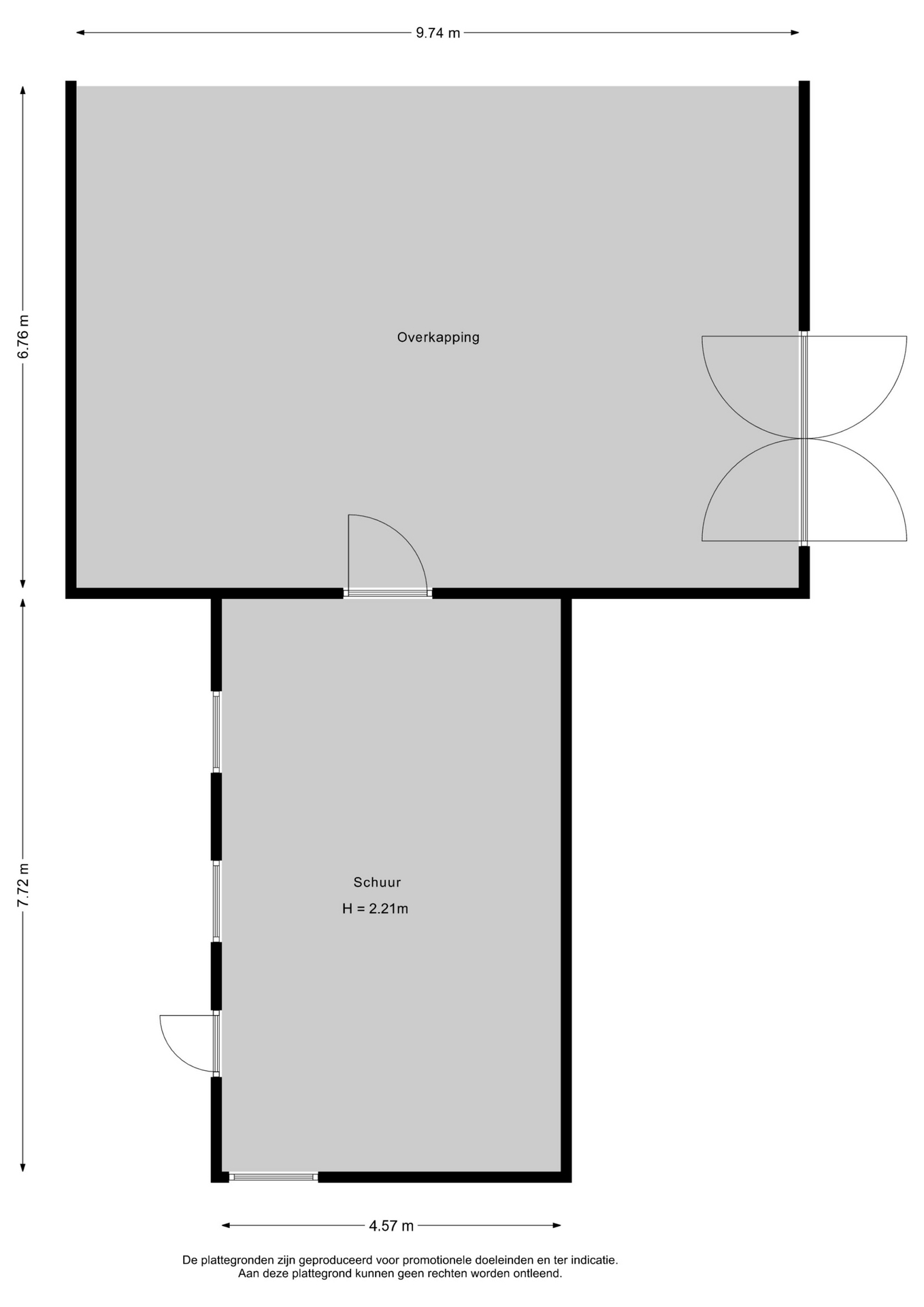
Wat deze woning uniek maakt, is wat er achter de woning ligt: een royale houten schuur met daarachter een authentiek boothuis. Ideaal voor de hobbyist, de klusser of simpelweg als extra opslag- of recreatieruimte. De tuin is groen, verzorgd en biedt ruimte en rust. Momenteel wordt door de eigenaar een stukje grond gebruikt naast de woning, waardoor je dichtbij kunt parkeren. En met de bushalte praktisch voor de deur ben je ook zonder auto goed verbonden.
Woningen als deze – met een verhaal, een ziel én potentie – komen zelden beschikbaar. Dit is jouw kans om te wonen op een plek zonder concessies te doen aan comfort of bereikbaarheid.
Onze makelaars staan graag paraat om je rond te leiden in deze fraaie woning! Voor meer informatie en een goede indruk van de woning en de omgeving kijk je onze bezichtigingsvideo. Voor alle ins & outs kun je de brochure downloaden, hier tref je ook de lijst van roerende zaken en de vragenlijst van de woning. Tot snel!
PS. Ons nieuwe aanbod als eerste zien? Volg ons dan op Social Media, dan zit je pas eersterangs in de markt! Ons werkgebied beslaat een groot gebied in Noord-Holland. Benieuwd wat jouw huidige woning waard is? Onze makelaars komen graag bij je langs voor een vrijblijvend verkoopgesprek met gratis waardebepaling!
- 115 m2
- 447 m2
- 4
Kenmerken West 38
Overdracht
| Vraagprijs | € 450.000,- k.k. |
|---|---|
| Aanvaarding | In overleg |
Oppervlaktes en inhoud
| Perceel oppervlakte | 447 m2 |
|---|---|
| Woonoppervlakte | 115 m2 |
| Inhoud | 402 m3 |
Bouw
| Soort | Eengezinswoning |
|---|---|
| Bouwvorm | Bestaande bouw |
| Bouwjaar | 1971 |
| Dak type | Zadeldak |
| Isolatievormen | Dakisolatie, Vloerisolatie, Dubbelglas |
| Energielabel | F |
Indeling
| Aantal verdiepingen | 3 |
|---|---|
| Aantal kamers | 5 |
| Aantal slaapkamers | 4 |
| Aantal badkamers | 1 |
Maandlasten
Ligging West 38
Voorzieningen
Centraal gelegen informatie over de buurt
Aantal inwoners
In de gemeente
22.522
Leeftijd
in percentages van totaal
Huishoudsamenstelling
in percentages van totaal
32%
20% NL
31%
20% NL
37%
20% NL