€ 1.395,- p/m
**Direct verhuurd**
Op een prachtige en historische plaats in Middenbeemster, slaan historie en toekomst hun handen in één. Wij kunnen in deze stellen dat onze opdrachtgever de Beemster een warm hart toedraagt, door op de plaats van de voormalige verfwinkel aan de Dirck van Osslaan, met de voorgevel aan de Middenweg gesitueerd, een vijftal woningen te realiseren waarbij kosten noch moeite bespaard zijn gebleven.
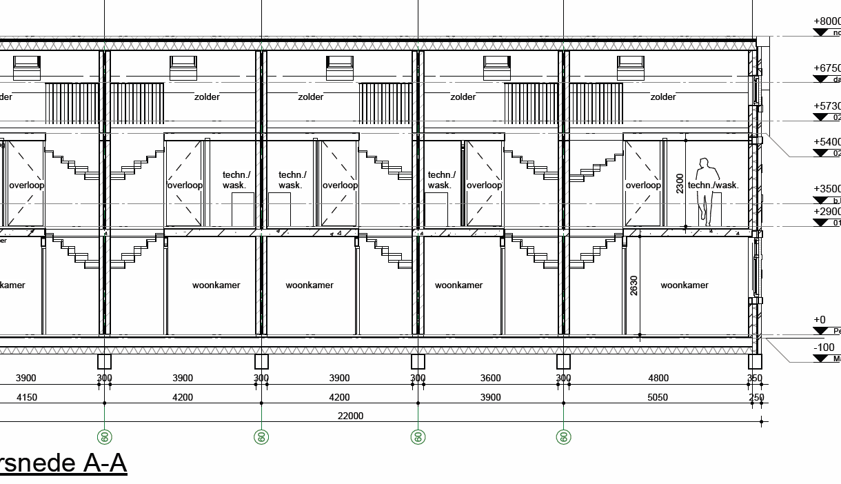
De woningen zijn aardgasloos, ontzettend energiezuinig (onder andere door de warmtepomp en zonnepanelen) en fraai bemeten. Binnen het complex bieden wij een tweetal woningtypes aan; drie maisonnettes van circa 50 vierkante meter (exclusief de bergzolder en de separate berging) en één maisonnette, gesitueerd aan de voorzijde van het pand, van circa 70 vierkante meter. De appartementen zijn beschikbaar voor onbepaalde tijd.
De appartementen van circa 50 vierkante meter zijn onderverdeeld in een woonkamer met open Sense keuken van circa 24 vierkante meter, met een doorgang vanuit de woonkamer naar de tuin, een eerste etage met een ruime badkamer voorzien van een inloopdouche, toilet en wastafel, een royale slaapkamer en een separate wasruimte. De zolder kan prima dienst doen als bergruimte, in aanvulling op de separate (fietsen)berging.
Het appartement van circa 70 vierkante meter is gelijksoortig ingedeeld, maar beschikt op de etage over een extra slaapkamer. Dit appartement geniet eveneens de voortuin van het pand, richting de Middenweg.
De prijslijst is als volgt:
Dirck van Osslaan 6 – € 1.425,00 excl. servicekosten;
Dirck van Osslaan 8 – € 1.395,00 excl. servicekosten
Dirck van Osslaan 10 – € 1.395,00 excl. servicekosten
Dirck van Osslaan 14 – € 1.595,00 excl. servicekosten
De verwachte oplevering van het complex is eind 2024, waardoor de streefdatum voor de ingangsdatum voor de huurovereenkomst 01 januari 2025 zal zijn.
De appartementen worden opgeleverd met wand en- plafondafwerking, een open keuken, betegeld toilet en afgewerkte badkamer, doch zonder vloerafwerking. Hierdoor kun je, ondanks dat het een huurwoning betreft, toch de woning naar jouw eigen smaak verder afwerken.
De appartementen worden beheerd door Tromp Werelderfgoed Beheer en Verhuur, onderdeel van Tromp Garantiemakelaars. Tijdens de huurperiode zullen wij jouw aanspreekpunt zijn, ook als je vragen hebt omtrent (geoorloofde) wijzigingen, bijvoorbeeld binnen schilderwerk. Toewijzing van de appartementen geschiedt door onze opdrachtgever die zich het recht op gunning behoudt.
De huurprijs is exclusief servicekosten, welke op basis van een voorschotbedrag in rekening gebracht worden. De richtprijs voor de servicekosten is € 100,- per maand.
Totaal zijn er zes parkeerplekken aanwezig op het terrein, overige auto’s zouden in de openbare ruimte geparkeerd moeten worden.
Voor de appartementen hanteren wij een inkomenseis van minimaal 2,5 keer de maandelijkse huurpenningen. Eventuele overwaarde van een te verkopen woning wordt meegerekend bij de toetsing. Indien je benieuwd bent naar de huidige waarde van jouw eigen woning, dan komen wij graag vrijblijvend langs voor een waardebepaling!
- 50 m2
- 1
Kenmerken Dirck van Osslaan 10
Overdracht
| Huurprijs | € 1.395,- p/m |
|---|---|
| Aanvaarding | In overleg |
Oppervlaktes en inhoud
| Woonoppervlakte | 50 m2 |
|---|---|
| Inhoud | 190 m3 |
Bouw
| Soort | Maisonnette |
|---|---|
| Bouwvorm | Bestaande bouw |
| Bouwjaar | 2024 |
| Isolatievormen | Volledig geïsoleerd |
Indeling
| Aantal verdiepingen | 2 |
|---|---|
| Aantal kamers | 2 |
| Aantal slaapkamers | 1 |
Maandlasten
Ligging Dirck van Osslaan 10
Voorzieningen
- De Blauwe Morgenster 227 m Nicolaas Cromhoutlaan 2 MIDDENBEEMSTER
- Amsterdamse Hogeschool voor de Kunsten 20 km Jodenbreestraat 3 AMSTERDAM
- Regio College 5 km Spinnekop 2 PURMEREND
- Amsterdamse Hogeschool voor de Kunsten 20 km Jodenbreestraat 3 AMSTERDAM
- Universiteit van Amsterdam 20 km Spui 21 AMSTERDAM
Centraal gelegen informatie over de buurt
Aantal inwoners
In de gemeente
9.205
Leeftijd
in percentages van totaal
Huishoudsamenstelling
in percentages van totaal
31%
20% NL
31%
20% NL
38%
20% NL