Ga naar inhoud

De Veken 122

1716 KG Opmeer

Verhuurd

€ 1.650,- p.m

  1. Home>
  2. Bedrijfspanden>
  3. Huur Opmeer De Veken 122

De Veken 122 E Opmeer

Kijk! Dit is een ruimte waar menig ondernemershart sneller van gaat kloppen. Een ruim bemeten bedrijfsruimte, waar de ruimte optimaal wordt benut, van recente bouw en goed uitgedost.

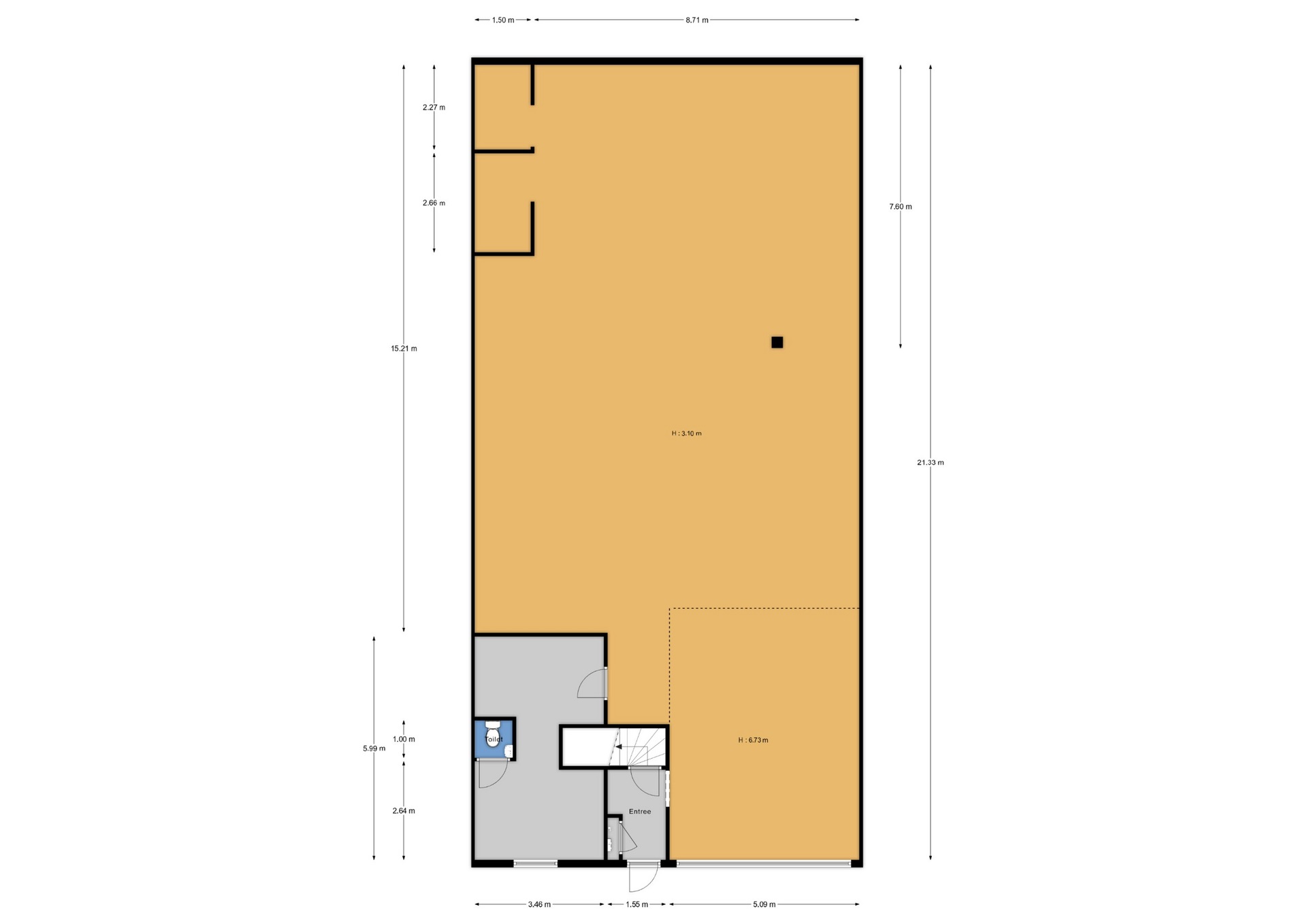
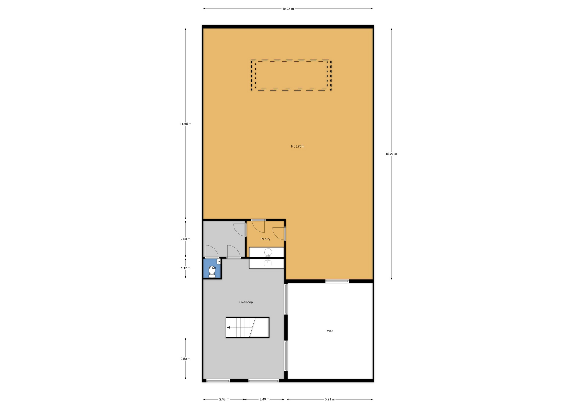
Deze prachtige bedrijfsruimte met een totaal realiseerbaar vloeroppervlak van 440 vierkante meter mogen wij te huur aanbieden. Recentelijk is de gehele ruimte opgeknapt en kun je met je bedrijf goed voor de dag komen op het goed bereikbare bedrijventerrein De Veken in Opmeer.

Het bedrijven terrein, gelegen nabij Hoorn en Heerhugowaard, is goed en snel bereikbaar en biedt u een goede ontsluiting naar N241 en de A7 richting Hoorn, Purmerend en Amsterdam.

Het riante bedrijfsgebouw biedt u een zee aan ruimte en is v.v. een uitgebreide elektrische installatie, een aparte pantry, separaat toilet, kantoor en berging.

Aanvaarding kan spoedig, want de loods is leeg opgeleverd om hem weer lekker op te frissen!

Wetenswaardigheden:
– Ten opzichte van de fotoreportage is de trapopgang gewijzigd, alsmede de kantoorruimte.
– Voor diverse doeleinden geschikt;
– Grote overheaddeur;
– Twee lagen met vaste trap en vide t.b.v. bereikbaarheid met heftruck;
– Borg is gelijk aan twee keer de maandhuur;
– Huurtermijn in overleg, korte termijn is mogelijk, evenals 5 + 5;

  • 411 m2

Kenmerken De Veken 122

Overdracht

StatusVerhuurd
Prijs€ 1.650,- p.m
AanvaardingIn overleg

Oppervlaktes en inhoud

Soort ObjectBedrijfsruimte
Oppervlakte411 m2
Bedrijfshal vrije hoogte310 cm

Parkeergelegenheid

Geen eigenschappen

Bouw

BouwvormBestaande bouw
Bouwjaar1998
Bouwjaar toelichting

Overig

Bedrijfshal in units vanaf411 m2
LocatieBEDRIJVENTERREIN
Aantal lagen1
Onderhoud binnenGoed
Onderhoud buitenGoed

Ligging De Veken 122

Vergelijkbaar bedrijfsaanbod